K-21914
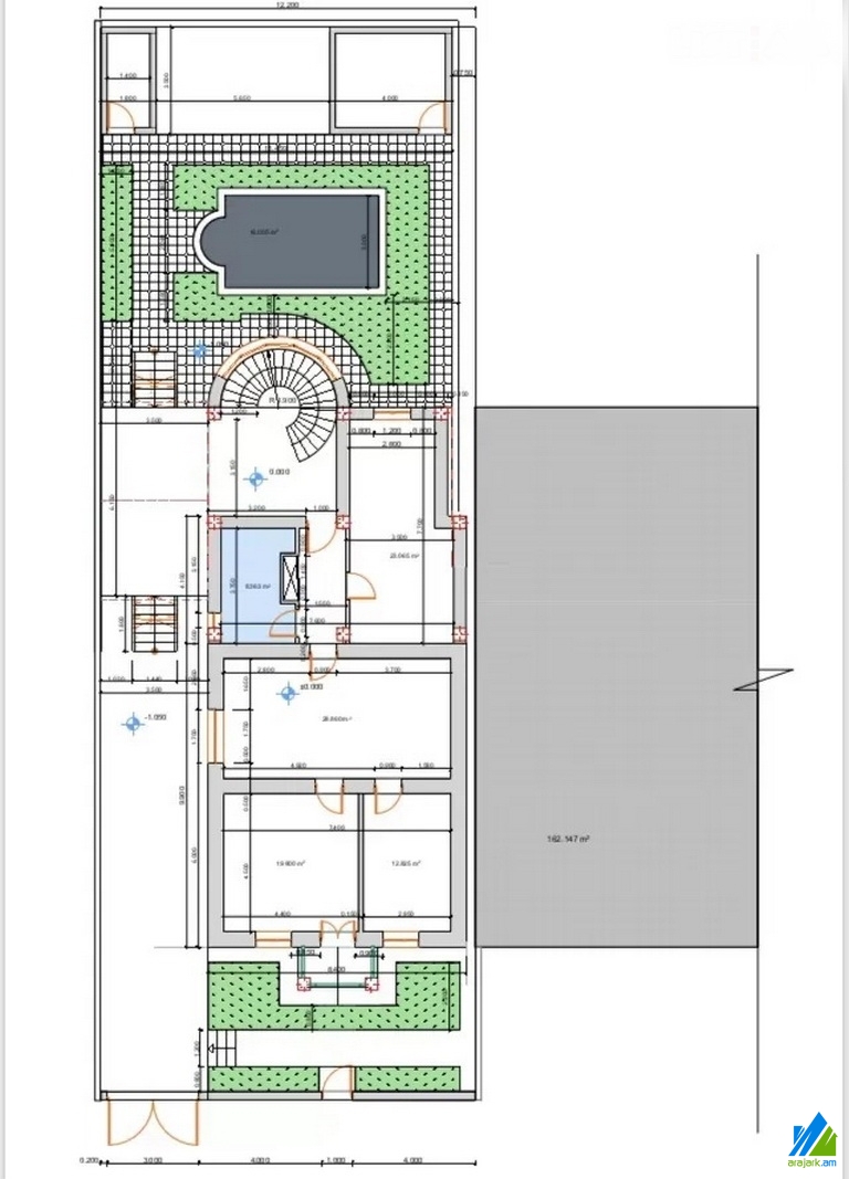
Վաճառվում է 2 հարկանի 5 սենյականոց կիսակառույց առանձնատուն Կիևյան 1-ին նրբանցքում։ Առանձնատունը զրոյական վիճակում է։ Մուտքի դուռը՝ երկաթյա։ Սանհանգույցը (2)` համակցված։ Ունի խաղասենյակ, տեռասա, քարե ավտոտնակ, նկուղ (120քմ), լողավազան, մշտական ջուր և գազ։ Ազատ հողը՝ 250քմ։ Հողի ճակատի երկարությունը՝ 12մ։ Տան ճակատի երկարությունը՝ 9մ։
Partially built 2-storey house for sale in Kievyan 1st Side Street. The rooms' quantity is 5 ( a hall and 4 bedrooms). The house is in the zero condition. The entrance door is iron-made. The bathrooms(2) are combined. It has a play-room, terrace, stone building, cellar (120sq.,m), pool and is supplied with constant water and gas. The free land is 250sq.m. The length of the forehead of the land is 12m. The length of the forehead of the house is 9m.

